Informace
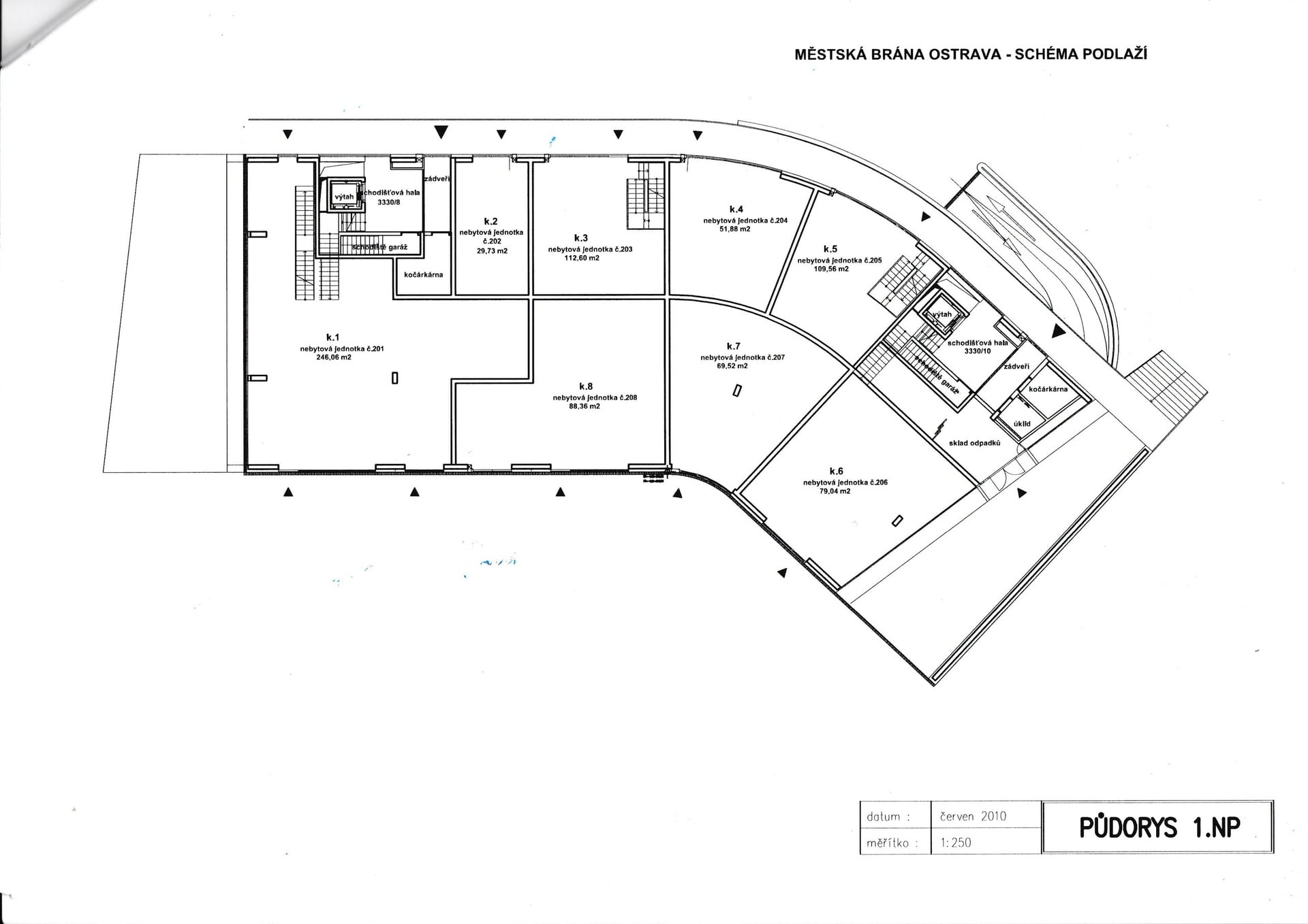
Nabídka prodeje obchodních prostor, o ploše 89 m2, v novostavbě bytového domu Ostravská brána, na ulici Biskupská, v samotném centru Moravské Ostravy, v bezprostřední blízkosti Masarykova náměstí.
Obchodní prostory jsou situovány v přízemí moderní architektonicky zdařilé šestipodlažní budovy, s orientací do Kostelního náměstí, kdy tento i ostatní obchodní prostory jsou vertikálně odděleny od fasády velkými francouzskými okny vsazenými do plných ploch sklocemnetového obkladu budovy se skleněnými plochami a červeným akcentem fasády.
Vlastní plocha prodejního prostoru činí 69 m2, na něj navazuje sklad se zázemím a regálovým systémem ( 13 m2) , k dispozi je v zázemí také samostané WC (1,9 m2) , kuchyňka s umyvadlem ( 2m2) a šatna pro personál (3,5 m2). Prostory jsou klimatizovány, snímámy bezpečnostními kamerami a jsou napojené za zabezpečovací systém s alarmem a hlídány bezpečnostní službou. Na osvětlení byla použita moderní úsporná LED světla, a to přiznaná do stropu a zapuštěna v sádrokartonových podhledech.
Vytápění radiátory a ohřev TUV díky samostné kotelně v objektu. Celkové měsíční náklady na služby, ohřev vody , dodávky tepla, SUV, služby v domě a v neposlední řadě dodávky elektřiny, jsou velmi přijatelné a to zejména díky modernímu charakteru budovy a špičkovým materiálům, použitým při stavbě.
Dosud prostory sloužily pro maloobchodní prodej obuvi. Díky své poloze v samotném centru města se nabízí celá řada využití této jednotky pro nového majitele a to buď pro další maloobchodní prodej nebo poskytování služeb. Nespornou výhodou těchto prostor je dostatečně velké zázemí pro zaměstnance a klienty.
PŘEHLEDOVÁ TABULKA
| CENA | |
| PODLAHOVÁ ROZLOHA | 89 m² |
| LOKACE | Centrum obce |
| ENERGETICKÁ TŘÍDA | C - Úsporná |
| UŽITNÁ PLOCHA | 89 m² |
| PODLAŽÍ | 6 (1. NP) |
| STAV OBJEKTU | Novostavba (Cihlová) |
Veškeré zveřejněné údaje obsažené v tomto inzerátu mají pouze informativní charakter a nejsou nabídkou ve smyslu § 1731 nebo § 1732 občanského zákoníku, ani se nejedná o veřejný příslib dle § 1733 občanského zákoníku. Z této nabídky tak nikomu nevzniká nárok na uzavření smlouvy. Společnost EICHNER s.r.o. zprostředkovává údaje (informace) nabyté v dobré víře od vlastníka nemovité věci a z tohoto důvodu nenese odpovědnost ze jejich úplnost, správnost a přesnost. Současně není oprávněna uzavírat jménem vlastníka nemovité věci jakékoliv smlouvy spojené s prodejem nemovitosti.
Prohlédněte si další nemovitosti

| 247 m² | Zlín |

| 234 m² | Zlín |

| 235 m² | Pozlovice |
























